
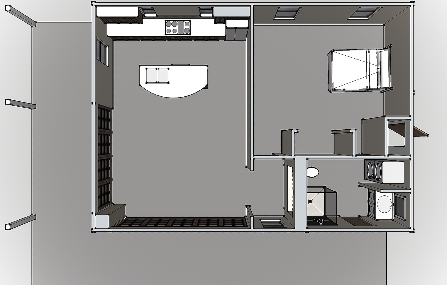
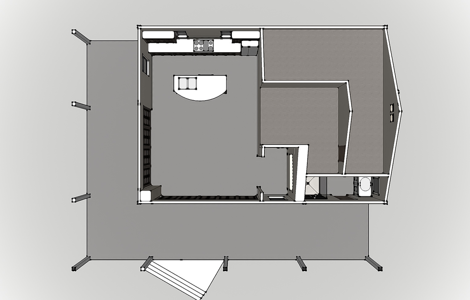
Alpine Guest House ADU
This 1000 sqft guest house accessory dwelling unit features an expansive kitchen dining room area, bedroom, bathroom, laundry, and a loft storage area to service the client’s socially active lifestyle. Located in Alpine, California.
Click on gallery images below to view more:
Visit Alpine Guest House featured project page:
Alpine Guest House ADULike what you see? Do you have a similar project in mind?
Contact us today to see how we can best serve you on your next building project.
Tel: +1 (805) 466-7674
E-mail: gary@
GFH Architecture, Planning and Graphics has over 30 years of design experience and expertise in custom residential, commercial, industrial, multi-residential, wineries, & assisted care throughout California and the Central Coast. If we can be of any assistance to you and your current building project, please don’t hesitate to contact us. We would love to help you create your next cost-effective design with our in-house experts and our wide-range consultant base.