Click on desired gallery image to enlarge for more detail.
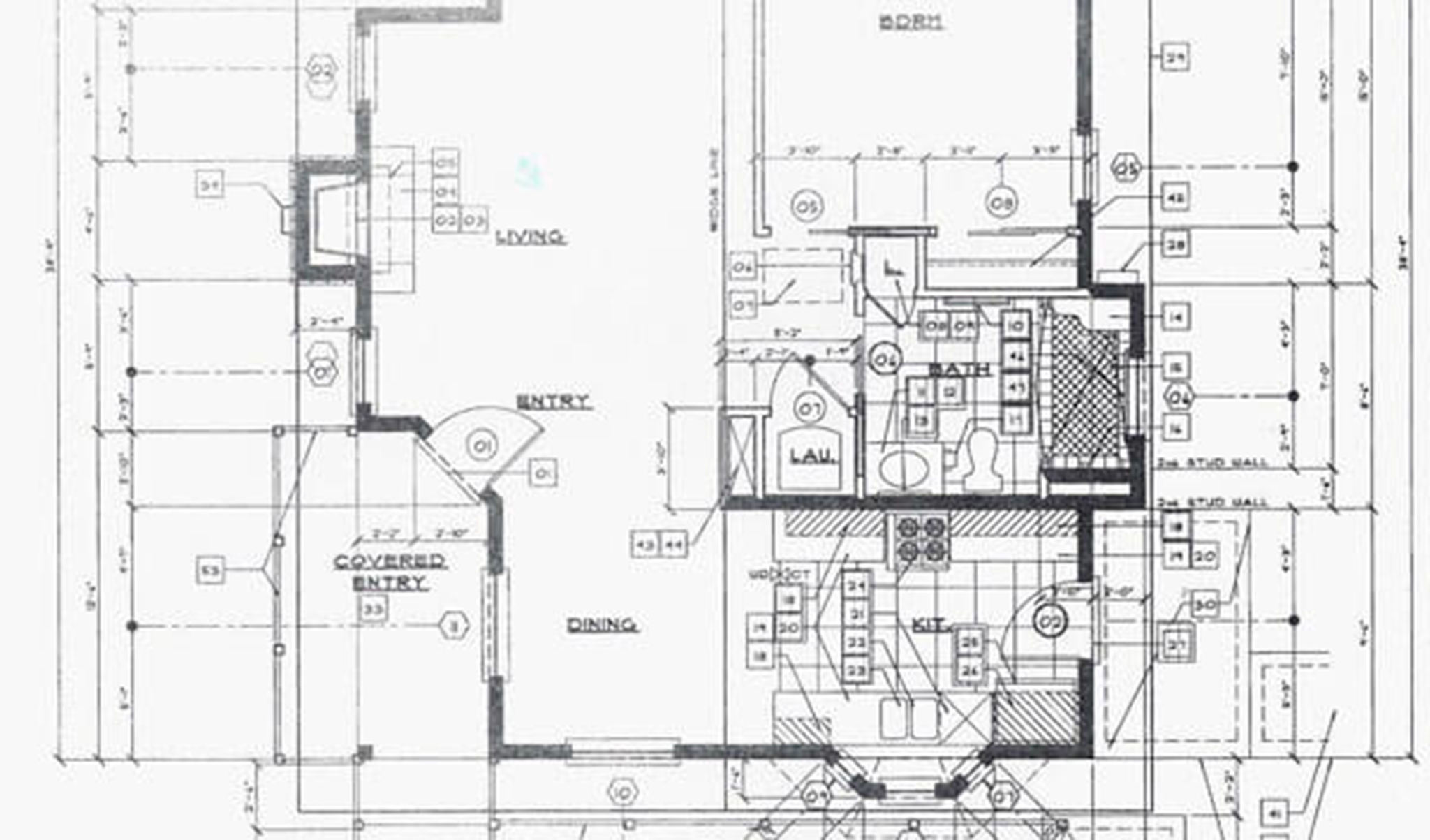
This spacious accessory dwelling unit features numerous amenities in addition to its full kitchen, living room, dining room, den, laundry room, bedroom and bathroom. Complete with covered entry, ramp, multiple patios, & carport.
Location : Atascadero, CA
Feature : Entry
Feature : Patios
Feature : Carport
Style : Contemporary
Have a similar project in mind?
GFH has over 40 years of architectural experience serving the Central Coast.
Contact us today to discover how we can best serve you on your next building project.
We love our home and visitors always comment on the unique beauty and livability of our home. We highly recommend Gary Harcourt to anyone considering his services.
I would welcome the opportunity to work with Gary again and I have no hesitation in recommending him for his services.
Excellent and timely service. Never had to wonder if our best interests were being served, or if there were 'new' or 'complicated' issues requiring additional time and energy. Highly recommend!
View our testimonials page to discover all the positive feedback we've received from some of our many satisfied clients.